K.B.R

  • K.B.R
  • K.B.R_thumbnail

部屋によって詳細が違う場合があります

学生専用、ペアガラスサッシ


建物情報

費用一覧
家賃
66,000円
共益費
5,000円
定額水道代
2,000円
敷金
50,000円
礼金
150,000円
更新料
99,000円
町会費
契約期間
1年
保険料

学生賠償責任保険(一人暮らし特約付き)8,500円/1年

その他費用
【火災保険】8500円/年【ルームクリーニング代】(入居時)27500円 ※記載の費用は変更になる場合がございます
基本情報
所在地
〒602-8439 京都府京都市上京区上立売通大宮西入る硯屋町296-1-2
竣工年月
2019年2月
部屋タイプ
1LDK
構造
鉄骨造 3階建て 全6室
専有面積
35.70m²
取引形態
媒介
入居条件等
学生専用
大学からの距離

立命館大学衣笠キャンパスまで 3.1km 徒歩26分 (自転車15分) (原付11分)

最寄駅

京都市バス 今出川浄福寺 徒歩5分

その他情報
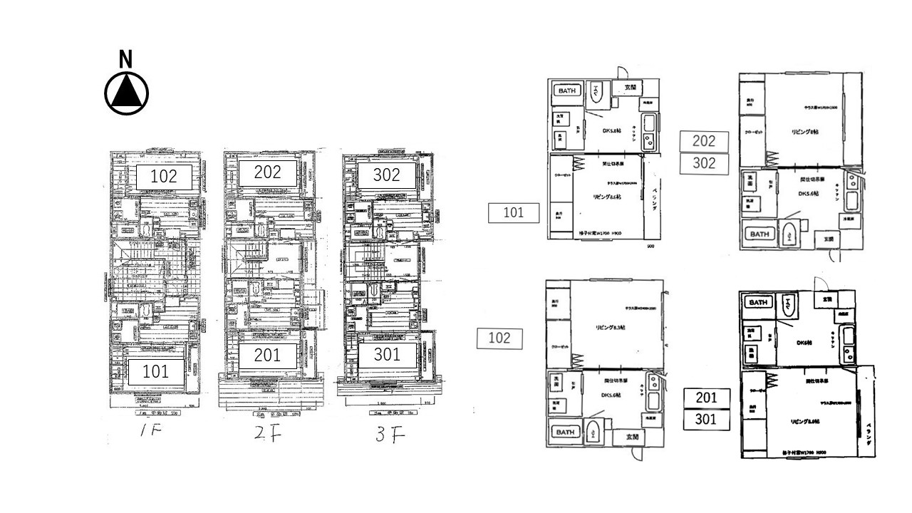
間取り図(部屋によって詳細が違う場合があります)
設備
  • トイレ・風呂別
  • オートロック
  • モニター付インターホン
  • インターネット無料
  • 洗濯機室内設置可
  • 洗浄付便座
  • 独立洗面台
  • 浴室乾燥機
  • IH調理器
  • オール電化
  • エアコン・クーラー
  • エレベータ
  • 防犯カメラ
  • フローリング
  • クローゼット
  • ウォークインクローゼット
  • 吊り棚
  • 2口キッチン
  • 番号式ドアロック
  • 宅配box
  • 家具付き
  • 家電付き
その他設備
【建物】インターネット無料(J:COM)1Gb /駐輪場:自転車無料/宅配BOX【部屋】室内洗濯機置場/照明器具/シューズケース/独立洗面台/IHコンロ2口備付/温水洗浄便座/浴室乾燥機【その他】洗濯機・冷蔵庫プレゼント※退去時に入居者が処分
周辺地図
空き部屋情報はこちらから

101

立命館大学生向けおすすめ物件

ハスラーKM

家賃
60,000円
定額水道代
2,000円
町内会費
-

フラッティ千本下長者町

家賃
60,000 〜 61,000円
定額水道代
2,000円
町内会費
-

エムロード紫竹(女子専用マンション)

家賃
59,000 〜 61,000円
定額水道代
2,750円
町内会費
-

(仮)フラッティ紫竹大門町

家賃
60,000 〜 63,000円
定額水道代
2,000円
町内会費
-

ページの先頭へ